Porzione di bifamiliare in vendita

Fumane, Via Alcide De Gasperi
€ 425.000
6 locali 6 locali
265 Mq 265 Mq
3 bagni 3 bagni

Porzione di bifamiliare in vendita

Fumane, Via Alcide De Gasperi

Descrizione annuncio

FUMANE – ZONA CENTRALE
Porzione di bifamiliare con giardino e ampi spazi interni

Nel cuore della Valpolicella, in una tranquilla zona residenziale del Comune di Fumane, proponiamo una porzione di bifamiliare di circa 265 mq commerciali, situata in una strada secondaria chiusa, lontana dal traffico e comoda ai servizi.
L’abitazione si sviluppa su più livelli ed è dotata di giardino privato e spazio esterno rialzato sopra l’autorimessa.

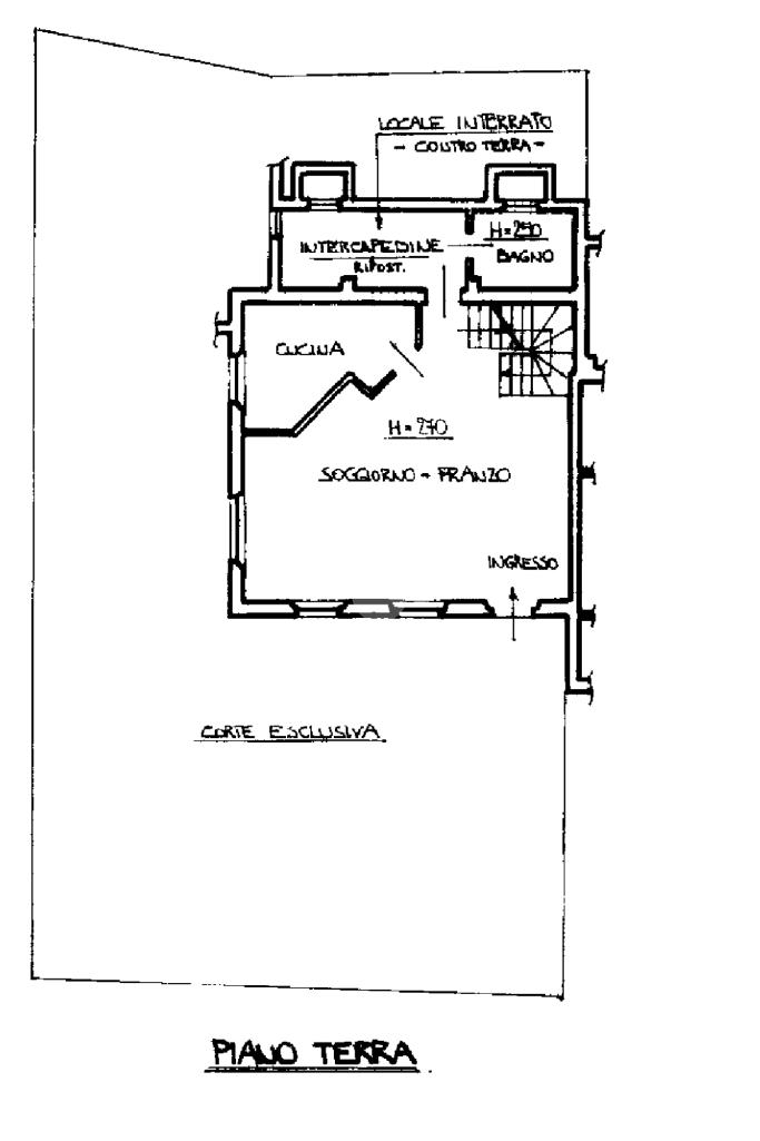
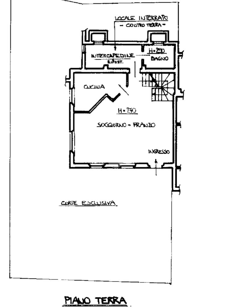
Piano terra:
- Ingresso su accogliente e moderno soggiorno
- Cucina abitabile separata
- Locale dispensa
- Bagno di servizio

Primo piano (zona notte):
- Due ampie camere da letto
- Camera matrimoniale con cabina armadio
- Seconda camera matrimoniale
- Grande bagno finestrato

Piano mansardato:
- Locale polifunzionale ideale come studio, area relax o ulteriore camera

Piano interrato:
- Ampia taverna
- Bagno/lavanderia

Completa la proprietà un garage esterno chiuso.

APE indicata meramente indicativa; quella definitiva è in fase di definizione.

Soluzione ideale per chi cerca spazi generosi, tranquillità e comfort a pochi passi dal centro del paese.

Se per acquistare questa abitazione avete la necessità di vendere il vostro immobile, saremo lieti di accompagnarvi e seguirvi in tutto il percorso.

Mostra tutto

Nelle vicinanze

Trasporto pubblico Trasporto pubblico
Trasporto pubblico
1,6 Km
San Pietro in Cariano
San Pietro in Cariano
2,2 Km
Scuole Scuole
Scuola Elementare Statale
540 m
Scuola Media Statale
590 m
Istituto Comprensivo Statale B. Lorenzi
600 m
Scuola dell'Infanzia
710 m
Scuole
2,3 Km
Farmacia Farmacia
Farmacia Dott. Braghetta
580 m
Farmacia
3,0 Km
Supermercati Supermercati
Ortofrutta Scamperle
530 m
Famila Sant'Ambrogio
2,5 Km
Dpiù San Pietro in Cariano
2,5 Km
Negozi Negozi
Madamadorè Pasticceria
390 m
Alimentari Fedrigo
830 m
Negozi
2,6 Km
Bar Bar
Bar
2,4 Km
Ristoranti Ristoranti
Osteria n°1
190 m
Ai Pigni de Cerù
220 m
Locanda Le Salette
310 m
Trattoria La Pineta
370 m
Ristorante Scamperle
420 m
Mostra tutto

Caratteristiche

Rif.:
61144907
Piano:
Su più livelli di 3
Totale piani:
3
Box:
1
Posti auto:
1
Balconi:
2
Mostra tutto
Prezzo Prezzo
€ 425.000
Rata mutuo Rata mutuo
€ 2.006 / mese
Proponi il tuo prezzoProponi il tuo prezzo

Classe Energetica

D
D
D
D
D
D
D
D
D
EP invernale del fabbricato:
EP estiva del fabbricato:
Anno di costruzione:
1998
Riscaldamento:
Autonomo
Tipo impianto:
A radiatori
Tipo alimentazione:
Metano

Ti interessa visionare l'immobile?

Fissa un appuntamento  Fissa un appuntamento

Richiedi informazioni

Clicca su Leggi per aprire l'informativa
* Questi campi sono obbligatori

Calcola il tuo mutuo

Semplice e senza impegno
Anticipo

( % )
Mutuo

( % )

pochi semplici passi

inserisci i tuoi dati
Questionario completato
Grazie per aver richiesto un appuntamento senza impegno con un nostro Consulente del Credito e Assicurativo.

Hai inserito correttamente tutti i dati necessari e a breve riceverai una e-mail con un link da convalidare per inviare i tuoi dati.
Affiliato
Valpolicella Associati Srl
Via Beethoven, 3 37029 San Pietro In Cariano (VR)
Via Beethoven, 3 37029 San Pietro In Cariano (VR)
Zona: Valpolicella-San Pietro-San Floriano-Corrubbio-Bure-Fumane
Mostra su mappa
Orari: Dal Lunedì al Venerdì: 09.00 - 12.30 e 15.00 - 19.30 e il Sabato: 09.00 - 12.30
Affiliato
Valpolicella Associati Srl
Via Beethoven, 3 37029 San Pietro In Cariano (VR)

2025 Tecnocasa Franchising S.p.A. - P. IVA 08365160152 - Via Monte Bianco 60/A 20089 Rozzano (MI). Ogni agenzia ha un proprio titolare ed è autonoma. Privacy policy | Policy utilizzo | Cookie policy